Gazey Architects home         projects         process         testimonials
        contact
 

residential
  brunswick road
  chelsfield barn
  eafield road
  grasmere
  lower anchor street
  milton road
  packwood chase
  queensmere road
  station road
  stonenest street
  tivoli road
  woodside lane
education
commercial
civic / cultural

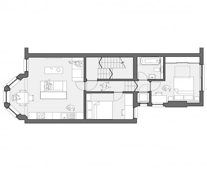
Milton  Road 

A dated split-level two-bedroom first-floor flat within a sub-divided north London Victorian property was reworked and refurbished to create an open-plan kitchen, dining and living space.

The brief was to clarify the bedroom configurations while creating a contemporary open-plan kitchen, dining & living space. This was achieved by relocating both the existing half-flight stair and main bathroom. This key move involved removing a significant amount of existing masonry and the introduction of new steelwork.

The design proposals also include a new under-floor heating system, a contemporary kitchen, new bathroom and the replacement of all existing window units.

The introduction of a large external window opening in the property's rear and the installation of a new openable rooflight provide the rear bedroom space with an increased level of natural daylight.

  1  2